НефАЗ-5299-30-52nefaz-5299-30-52
Поиск деталей
Например: Автобус НЕФАЗ 5299-0000030-52
НЕФАЗ 5299-0000030-52ЭлектрооборудованиеПринадлежностиУстановка оконУстановка сиденийУстановка дверейУстановка наклеекУстановка элементов управленияЭлементы кузоваКузов

5299-30-32-3700000 – Электромонтажный чертеж

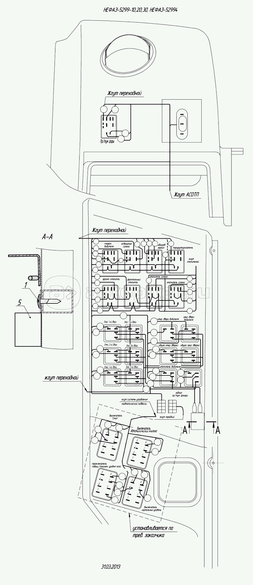
5299-30-32-3700002 – Электромонтажный чертеж блока коммутации

5299-10-3700003 – Электромонтажный чертеж панелей приборов

5299-302-5000300 – Установка маршрутоуказателей

5299-30-3718076 – Установка радиооборудования

5299-3718077 – Установка светильников

5299-30-3718080 – Установка переключателей на панели приборов

5299-23-3718370 – Установка блока коммутации